高知林大との合同改修設計ワークショップ2025(後編)
28日
設計を引き続き詰めていきます。
昨日の試験でも、耐震強度が不足していることが分かっています。また、断熱材も一切入っておらず、冬は非常に寒いことが分かっています。限られた予算の中で、何に力を入れるのか。どこを残してどこを改修するべきなのか。班ごとに答えを出していきます。
正直なところ、この日はこれ以上書くことはありません。とにかく考えて、手を動かして、練り直して、を繰り返しました。徹夜で作業をしたメンバーもちらほら。時間が限られているなかでベストを尽くそうという、気概のある人たちばかりでした。先生方も夜遅くまで付き合ってくださいました。

29日
昨日から夜通し作業を行いました。
改修後の断熱性能の計算、耐震性能の計算、図面や3Dモデルの作成、プレゼンテーション資料の準備、模型の作成などなど。各班、発表に向けて準備をしてきました。
昼過ぎに町役場まで移動し、町役場の魚濱さんと、高知県職員の石本さんを相手にプレゼンテーションを行いました。発表は移住者を呼び込みたい役場の方に向けてしています。そしてそれ以上に、将来の住まい手を想ってのものでもあります。予算やコンセプト、構造についてなど、相手が懸念していることを考え、届くように心がけた内容になるよう努めました。
Aグループ「ぬくい、いえ」

「寒冷な山間地域でも寒さを楽しめる暮らし/リモートワークが心地いい、陽だまりがある家/移住者があたたかく地域の人と関われる家」がコンセプトです。

既存の大梁や差鴨居を活かした改修案でした。地域の人たちにひらくと同時にプライベートなエリアは確保するという、間取りのバランスが絶妙な提案で、大変勉強になりました。

SketchUp(3Dモデリングソフト)の使い方もとても効果的で、たとえば「東側の眺望を活かしてリビングを持ってくる」といった提案に説得力がありました。
Bグループ「雲の上の家」

「家族で移住したくなる家」がコンセプトのこの家は、子連れ世帯にも安心して地方移住できて、近隣コミュニティのなかで元気に過ごしていける家にすることを目的として設計しています。
家を、地域との交流の場、家族の交流の場、プライベートな空間という大きく3つのレイヤー(層)に分け、それぞれのレイヤーごとの動きをつくるという提案でした。

耐震改修と断熱改修について、丁寧かつ具体的な提案がなされていました。予算についてもしっかりと検討されていました。
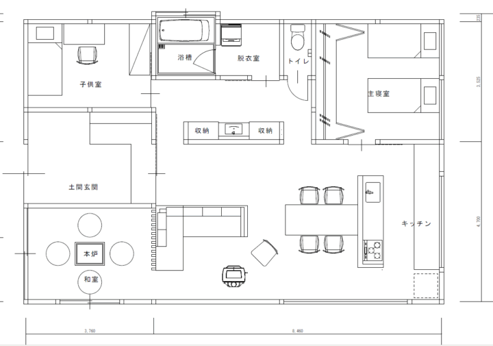
Cグループ「交歓の家」

「交歓」とは「あまり交際のない人たちが打ち解けた雰囲気で親しく交わること」を指します。地域住民との交歓、景観との交歓、かつてこの家に大切に住んでいた人との交歓、という3つの交歓をコンセプトとして掲げています。

土間玄関と和室をこあがりでつなげ、地域に開かれた場にすることや、東側にリビングを設け、東側の心地よい開放的な眺望と繋げることを意識しました。
当初、間取りのサイズ感や設計コンセプトもめちゃくちゃだったのですが、先生方から貴重な指摘を何度もいただき、ずいぶんと良い配置計画になったのではないかと思います。チームメンバーの意見は自分では思いつきもしない良いものばかりでした。
各チームのプレゼン後に、魚濱さんと石本さんから質問とコメントをいただきました。どの質問・コメントも的確なものばかりでした。また各チームの応答もしっかり練った案であることが伝わってくるものでした。

夜は慰労の意を込めたBBQをしました。疲れ果てた身体にビールが沁みました……。
30日
分乗して梼原町から美濃まで帰ります。途中、牧野植物園に寄りました。内藤廣氏による設計です。


建築自体の美しさもさることながら、植物の種類や生息域の多様さに圧倒されました。展示のされ方にも愛が込められていることを感じました。森林文化や植物に興味のある人であれば誰もが虜になると思います。
牧野植物園に隣接した、竹林寺にも立ち寄りました。ここは四国八十八ヵ所霊場の札所です。納骨堂は堀部安嗣による設計です。静謐な空間でした。

(竹林寺納骨堂。屋根の収まりが気になる建築学生たち)
今回の設計ワークショップを経て気づいたことのひとつ目は、知識・経験の差です。参加した人のなかには、配置案をはじめ温熱性能、耐震性能などの改修案を生み出すのに他の人より格別に長けているなと感じる人もいました。きっと繰り返し手を動かしていく中で磨かれていったものなのだろうと思います。感性やセンスといった言葉で済ませてしまうのではなく、日々の地道なことの積み重ねなのだろうと信じ、一歩ずつ進んでいこうと思いました。
ふたつ目は、チームで動くということの重要性とその難しさです。それぞれが全体をフォローアップしあわないと、短時間でまとめあげたり、成果を出せないことを痛感しました。
私たちCチームは最後までドタバタして、最終プレゼンは綺麗にまとまっているとは言えないものになってしまいました。私も作業を進めている途中で「このままじゃ間に合わなさそうだから一度時間配分を確認したほうがいんじゃないか」と思うこともありましたが、慣れない作業ばかりでどう段取りをすればいいのかわからなくて口を出せず、また自分の作業に追われて全体を見るような余裕がありませんでした。これについてもやはり経験がものをいうところがあると感じます。
設計のプロとして働き始めるまでの猶予はあと一年と少し。来年の設計ワークショップではもう少し成長した姿を見せられたらと思います。
木造建築専攻 千々和 駿